Homes Under Construction
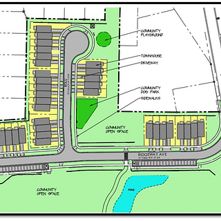
With support from our community and partner organizations, Durham Habitat builds homes throughout the city of Durham. Take a look at where we are currently building, what we have accomplished together, and what’s ahead for us.
All of this is possible because you are committed to our mission and because you support affordable homeownership in our shared community. If you are interested in donating or selling land to Durham Habitat, please contact us at development@durhamhabitat.org. For other ways you can support our work, please visit Ways to Give. For information about our Homeownership program or our Repairs program please visit Services.
Current Builds
Upcoming Initiatives
Since 1985, Durham Habitat has built nearly 500 homes around the Durham community. The homes below represent a small portion of that work.