Wynn Oaks
Infrastructure construction to begin soon.
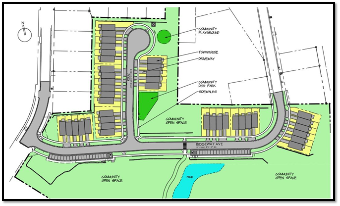
Number of homes: 40
In 2025, Durham Habitat will launch a multiyear project to build 40 homes near the city center.
Built on 10 acres, the townhome development will include community green spaces, a dog park, and a playground for residents to enjoy. Representing responsible density practices, this initiative maximizes the limited land available within Durham’s urban core.
This community is named in honor of Phail Wynn, Jr. who dedicated much of his career to improving the lives of Durham residents, serving as the President of Durham Tech for 27 years and then as vice president of Duke’s Office of Durham (now Duke Community Affairs) for 11 years.
